上海嘉定南山璞缦售楼处电话:400-8815-114(预约热线)南山璞缦营销中心服务热线:400-8815-114(已认证)预约看房请提前预约案场销售【南山璞缦】——诚邀品鉴——
【南山璞缦】
上海嘉定南山璞缦售楼处电话: 400-8815-114(预约热线)
南山璞缦营销中心
服务热线: 400-8815-114(已认证)
预约看房请提前预约案场销售
提起嘉定,人们心中想到的可能是它深厚的文化底蕴、五大新城的盛名,但相信和 “豪宅” 二字实在难以联想到一起。
纵观嘉定的新房市场,普遍都是以刚需和改善为主,可现在却有一个 打破了人们对嘉定房产界刻板印象 的新盘横空出世,产品 一经面世便引起了一阵不小的浪潮。
TA就是 「南山璞缦」 !
全球设计大师齐聚匠造
嘉定主城第一座海派精奢豪宅
嘉定首个恒温泳池会所大宅
高端圈层 领跑嘉定
这样优秀的产品力、极具优势的性价比,可以说在整个嘉定市场都见不到。

更值得称道的是,项目四期还带来仅32席约198m²奢阔大平层,
据克而瑞数据显示,嘉定2015-2025年十年内,约一千套新房仅3套面积约200㎡的大宅,想在嘉定住上真正的“豪宅级”大平层?机会真的少得可怜!
这就是嘉定城芯楼市里的“稀有物种”!是真正懂行的改善家庭、高净值人群紧盯着的“藏品”。

最新消息!嘉定南门,国匠南山2024年度封面之作 「南山·璞缦」 四期开盘热卖中!
推售建面约105-123-143-172-198㎡3-4房
五期过会均价45675元/㎡
总价365万起,首付约55万起!
上海嘉定南山璞缦售楼处电话: 400-8815-114(预约热线)
南山璞缦营销中心
服务热线: 400-8815-114(已认证)
预约看房请提前预约案场销售


上海嘉定南山璞缦售楼处电话:400-8815-114(预约热线)
南山璞缦营销中心
服务热线:400-8815-114(已认证)
预约看房请提前预约案场销售
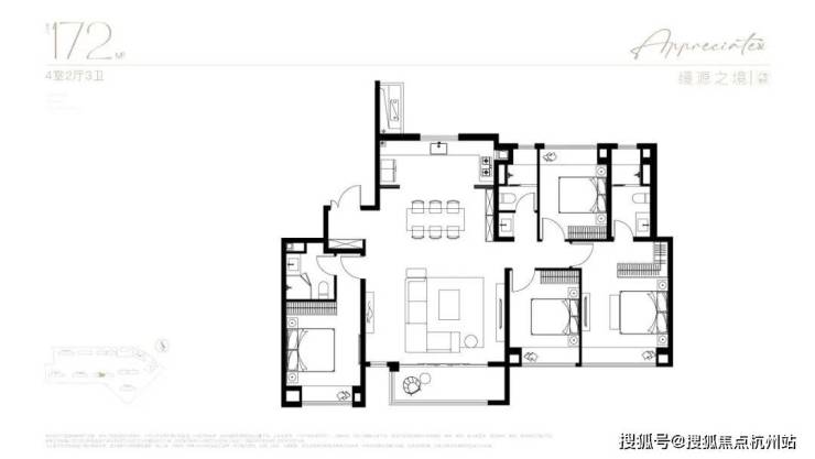
户型图赏鉴

上车首选户型!建面约105㎡的房源,主力总价段约400万级,这个价位段能买到嘉定品质标杆,绝对的性价比。

改善宽奢3房!标准的长面宽、短进深户型,再加上大宽厅的设计,采光面非常出众。另外,宽厅除了增加南向采光面外,还能作为一个灵动空间,不管是用作健身区域、瑜伽空间还是孩子的游玩天地,都是极佳的选择。

一步到位的宽奢4房!这是一个超大横厅的飞机户型,尺度感超强,餐厅甚至能放下一个8人桌,让一家人享受天伦。
双套房的设计更是让各个家庭成员都能享受到私密空间。


终极改善的顶奢4房!极端宽奢的南北通透户型飞机户型,你能想象到的美好都能在这个户型中体验到。
卷精装卷细节 超硬核产品力装标全线公开!
中央空调:日立、松下、东芝 (或同档次品牌);地暖:博世(或同档次品牌);新风:迈迪龙(或同档次品牌);西门子、博世(或同档次品牌)厨房三件套;弗兰卡(或同档次品牌)厨房洗涤盆及龙头;名族、雷士、三雄极光(或同档次品牌)厨房凉霸;怡口(或同档次品牌)末端直饮;高仪、汉斯格雅、当代(或同档次品牌)卫生间龙头;恩仕(或同档次品牌)马桶。


土拍回顾及规划
上海嘉定南山璞缦售楼处电话: 400-8815-114(预约热线)
南山璞缦营销中心
服务热线: 400-8815-114(已认证)
预约看房请提前预约案场销售
2023年10月24日,上海第三批次土拍中,南山以总价175602万元成交嘉定工业区南门社区JDC1-0801、JDC1-0802单元44-08地块,地块出让面积34703.9㎡,容积率2.3。溢价率0%,楼板价22000元/㎡, 房地联动价46000元/㎡。

项目四至范围东至沪宜公路,西至群裕路,南至基地边界,北至沪宜公路。
根据设计方案显示,项目 拟建12幢14-18F住宅(含保障房)以及其他配套用房等建筑, 规划共计702户。

具体经济指标:

根据土地转让合同要求, 项目全装修交付,装修标准2000元/m²(集采价格)
形颂|俯仰一城高定的原点
透过一幢建筑的威仪,我们可以洞鉴一个时代的立意。
南山·璞缦,融入海派元素。横向近45米的面宽展翼风格,立于城中路起点,为主城打造区域昭示性建筑。
墙体采用雪山蓝石材,搭配香槟色铝板,普拉达绿石材、安哥拉黑石材、真石漆保温一体板与大面积落地玻璃,叠水小品迎宾启幕归家礼序。
景观雕塑,将 “缦奢归璞”所追求的圈层礼制得以具象。敕造奢阔实景,境现嘉定主城高阶圈邻。

境颂|平移双轴六景的浪漫
项目园林对轴线的运用同样出彩,堪称神来之笔的 “双轴六境”,由 “礼序归家轴+景观漫步轴”纵横交织,融在地文化,以“非遗”竹编形制,铺陈园林步道,同步淬取 “州桥壁落”、“紫藤熏风”、“天水远香”等嘉定古今6景,提炼细节元素及专属色系,营造主题园林空间。

在南山·璞缦的中心景观区,艺术草坪中心特设以 “秋霞丹赪”为设计理念的艺术雕塑,让归家礼序徜徉于一个层层递进的轴线式院落,水韵造景、非遗文脉、森态曲径皆在其中,这样富有生活意趣的艺术设计俯拾皆是,为的就是给即将栖居在此的知交,一种更超脱,更关注精神向往的生活方式。

潮颂|恒温泳池会所的矜贵
约1500m²恒温泳池会所及 落差达约10米的水幕下沉式园林的打造,在奢石、臻材等元素的空间应用中,让显贵世家的社交场景,相映于粼粼碧波的柔光之中,于方寸之间游离世外。

4泳道按约10米X25米设置,特设深、浅水区,满足全龄业主的需求。泳池三集一体除湿热泵系统具备制冷、除湿、通风、制热功能,有效控制室内泳池区域的湿度,预防墙壁和天花板凝结水珠,减少霉菌生长,保持空气清新干燥。

(在项目交付后,关于泳池的运营方案以会所的所有权人与运营方签订的合同约定为准。)
匠颂|超越时间长河的臻贵
在浩瀚的历史长河中“石”被赋予了众多含义,从帕特农神庙典雅、艺术的大理石到从北京故宫威严、珍贵的云龙阶石,石材,诠释了历久弥新的永恒以及它所承载的古老韵味。

南山·璞缦, 精选亚马逊绿、巴西乌金石、白雪公主玉石等来自世界各地的珍贵石材,用奢贵迷人的光泽和质感,于圈邻会所、下沉庭院等生活场景中加以点缀,为嘉定主城演绎一场关于 “奢华石材”的美学展览,为至贵南门定制身份标签。
上海嘉定南山璞缦售楼处电话: 400-8815-114(预约热线)
南山璞缦营销中心
服务热线: 400-8815-114(已认证)
预约看房请提前预约案场销售

雅颂|集结志趣相投的社群
当城市文明愈发喧嚣,在快节奏的都市生活之中,精神的共鸣变得日愈臻贵。洞察当代生活方式的升级,南山·璞缦不断探寻关于生活更松弛的具象表达,而 缦·CLUB搭建VIP专属社群,未来也将通过创造人与城市的共生之美、人与自然的和谐之美、人与自我的共情之美,构建拥有丰盈生命的“缦”系生活观,让志趣相投的生活场景成为璞缦生活的日常。

缦奢归璞 为家高定
对理念的执着,对产品呈现细节的颗粒度的把控,这一切在背后的你看不见的严谨逻辑,全部外化在南山·璞缦的每一寸肌理。所以,在嘉定主城的腹地,南山·璞缦的美学天际线给出了这个时代对于藏品人居终极定义。

有别于带有强烈的工业时代的“复制黏贴”,钟情于南山·璞缦的第一眼,很大程度上源于其“next level”的立面美学。取自市花白玉兰的典雅形意, 塔冠圆弧勾勒创新设计,整体立面运用局部奢石、局部金属铝板,未来必将刷新嘉定主城的城市界面。
或许有人会问,南山地产为何愿意花费如此高昂的心力,来打造“缦字系”年度作品,一切皆源于“为嘉高定”的承诺。在今年8月的案名发布会上,南山·璞缦就联合 HZS滙张思(北京中海甲叁號院、广州合生缦云), 奥雅景观(上海大宁金茂府), HWCD(上海宸嘉100嘉佰道), 壹方设计(上海中海领邸玖序)等4大享誉全球的豪宅御用大师团队,在远香湖畔的保利大剧院共同发布了《缦奢归璞·为嘉高定》的城市宣言。

中轴之上,生活主场
南山·璞缦 烫金一英里生活版图,汇集古今对望的南门之址、政务同檐的圈层坐标、奢尚领潮的醇熟商圈、自然涵氧的生态绿境……凭借着接轨世界的实力与标准,以城央中轴为引领,预演未来缦奢生活的万般美好。
与区政府、区行政服务中心等各级政务单位同檐紧邻,花都荟、州桥老街领衔的主城醇熟商圈与嘉定宝龙、嘉定万达、远香湖CAZ等新城顶流IP构成了“烫金1英里”的全维生活半径,正在为这扇对望古今的主城封面解锁新的身份。
这一身份带来的直接影响,是嘉定主城对于品质住宅的渴望,达到了从未有过的高度,南门积蓄一座能为自己代言的大宅,要蕴藏在地文脉的厚积薄发,更能与时代人物共振同频。

荣耀缦奢归璞,匠心续写未来。南山·璞缦,不惜工本,为嘉定主城高定终极改善之作。项目以精研改善级平层尺度和圈邻志趣所需,为嘉定钜献海派泳池会所大宅,重构时代人居新坐标,南山·璞缦认购火爆盛启,年度积分红盘,你值得拥有!
生活配套
上海嘉定南山璞缦售楼处电话: 400-8815-114(预约热线)
南山璞缦营销中心
服务热线: 400-8815-114(已认证)
预约看房请提前预约案场销售
交通方面:11号线嘉定西站直线距离约2.4km,嘉闵线嘉戬公路站(在建中,具体以政府规划为准)直线距离约2.5km。双线轨交,高效通勤往来,一线直抵真如、徐家汇、前滩等CBD商圈。车行近享上海绕城、沪嘉高速、嘉闵高架及沪宜公路、沪翔高速等纵横路网,畅享虹桥枢纽及国家会展中心。

商业方面:花都荟、盒马鲜生一街之隔,聚合一站式广袤业态商业体量。紧邻罗宾森广场、疁城新天地 、大润发、州桥老街、永盛里、宝龙广场、嘉定日月光、印象城、嘉定百联购物中心等醇熟配套。立足南门,奢享嘉定老城与新城交融的潮流烟火气。

教育方面:项目周边学校资源较多,嘉定区百合花幼儿园,上海市嘉定区新成幼儿园,新成路小学,嘉定区迎园小学,上海戬浜学校,上海师范大学附属嘉定高级中学。

医疗方面:嘉定区中心医院、嘉定妇幼保健院、上海中医医院(在建中,具体以政府规划为准)等知名全系医疗资源加持,7X24小时护佑健康。

生态休闲:南苑公园、南城墙公园、横沥河等湿地公园环绕,凭栏对望汇龙潭公园、南水关公园,约3km车行半径直抵嘉北郊野公园及远香湖。无界涵氧生态集群,是公园,更是你的私家花园。

上海嘉定南山璞缦售楼处电话: 400-8815-114(预约热线)
南山璞缦营销中心
服务热线: 400-8815-114(已认证)
预约看房请提前预约案场销售
【南山璞缦】
——诚邀品鉴——
购房流程及各个环节注意事项
以下是购房流程及各个环节的注意事项,供您参考:
一、购房流程
前期准备
确定购房预算:根据自身经济状况,计算首付款金额,并评估还款能力,了解银行贷款利率、月供等信息。
了解购房政策:查询当地限购、限贷、税费、购房补贴等政策,确认自己是否具备购房资格。
准备材料:身份证、户口本、婚姻证明、收入证明、银行流水、征信报告等(贷款需用)。
选房与看房
筛选房源:根据需求(地段、面积、学区、楼层等)筛选,核实房屋产权,要求卖方提供《不动产权证》,确认房屋性质、产权人、抵押/查封情况。
实地看房:检查房屋质量(结构、装修、漏水、管道等),了解周边配套(交通、学校、商业、物业等),确认房屋是否出租(租客有优先购买权)。
签订购房合同
协商条款:与卖方协商价格、付款方式(全款/贷款)、交房时间、户口迁出、税费承担等,明确违约责任(如贷款失败、房屋瑕疵等处理方式)。
支付定金:定金一般不超过总房款的20%,签订《定金协议》或直接写入合同,要求卖方出具收据,注明“定金”字样。
签订正式合同:使用当地房管部门提供的《商品房买卖合同》范本,补充细节。中介参与的需签订三方合同,明确中介责任。
贷款申请(如需)
提交贷款材料:买方提供身份证、收入证明、银行流水、购房合同等,卖方提供房产证、身份证、收款账户等。
银行审批:银行审核通过后,买方与银行签订《贷款合同》,办理抵押登记(银行代办或自行办理)。
资金监管与过户
办理资金监管:房款通过银行或第三方监管账户支付,避免风险,过户完成后,监管账户放款给卖方。
缴纳税费:买方缴纳契税(1%-3%)、印花税(0.05%);卖方缴纳增值税(满2年免征)、个人所得税(1%或差额20%)、土地出让金(如土地性质为划拨),具体税费因城市、房屋性质而异。
办理过户:双方携带材料到不动产登记中心办理,领取新《不动产权证》(买方名下)。
房屋交接
结清费用:确认物业费、水电燃气费、暖气费等无拖欠,保留缴费凭证,要求卖方提供最后一次缴费单据。
交房验收:核对房屋现状是否与合同一致,清点附属设施(家具、家电等),交接钥匙、门禁卡、水电卡等。
户口迁移:要求卖方迁出户口,避免纠纷(可约定违约金)。
后续事项
办理物业更名,更新水电燃气账户。
保存所有交易文件(合同、票据、证件复印件等)。
若需装修,提前向物业报备。
二、各个环节注意事项
前期准备
确认购房资格:各地政策不同,需提前了解户籍、社保、婚姻状况等对购房的影响。
评估还款能力:避免因月供过高导致经济压力过大,建议预留一定应急资金。
选房与看房
核实产权:通过不动产登记中心查询房屋权属、抵押、查封情况,避免购买到有产权纠纷的房屋。
关注房屋质量:检查墙体是否平整、门窗是否密封良好、水电管道是否畅通等,可聘请专业验房师协助验收。
了解周边环境:注意房屋周边是否有噪音、污染源、高压线等不利因素,以及未来规划对房屋价值的影响。
签订购房合同
仔细阅读合同条款:重点关注交房时间、违约责任、房屋面积误差处理、装修标准等条款,避免签订不公平或模糊的合同。
明确补充协议:补充协议可能包含重要条款,需仔细审查,避免开发商通过补充协议减轻自身责任或加重买方义务。
保留证据:签订合同后,妥善保存合同原件、定金收据、付款凭证等,以备后续维权使用。
贷款申请
选择合适银行:不同银行的贷款利率、审批速度、还款方式等可能不同,可多咨询几家银行,选择利率较低、服务较好的银行。
保持征信良好:在贷款审批期间,避免频繁查询征信、申请其他贷款或信用卡,以免影响贷款审批结果。
关注贷款政策变化:如利率调整、贷款额度限制等,及时调整还款计划。
资金监管与过户
确保资金安全:通过正规渠道办理资金监管,避免将房款直接支付给卖方,防止资金被骗或挪用。
核对税费金额:不同城市、房屋性质的税费标准不同,需提前了解并核对税费金额,避免多缴或少缴。
办理过户手续:双方需携带齐全材料到不动产登记中心办理过户,确保产权顺利转移。
房屋交接
严格验收房屋:对照合同条款和房屋现状进行验收,如发现质量问题或与合同约定不符,及时要求卖方整改或赔偿。
结清费用:确保物业费、水电燃气费等无拖欠,避免后续产生纠纷。
户口迁移:要求卖方在合同约定时间内迁出户口,避免影响自己或子女的落户、入学等权益。
后续事项
办理物业更名:及时办理物业更名手续,确保物业服务的正常衔接。
保存文件:妥善保存购房合同、发票、契税证明、维修基金发票等所有交易文件,以备日后查询或办理房产证时使用。
关注房产证办理进度:及时与开发商或相关部门沟通,了解房产证办理进度,确保按时领取房产证。