【金色宝邸】
金色宝邸 售楼处电话:400-8826-821【预约看房热线】金色宝邸 售楼处电话:400-8826-821【售楼处电话/地址】金色宝邸 售楼处电话:400-8826-821【开发商认证】
售楼处标准看房流程
1进门接待
置业顾问迎接、登记信息,简单了解需求(预算、户型、用途)。
2沙盘讲解
介绍小区规划、楼栋位置、周边配套、交通、学区、商业等。
3区位讲解
看区域地图,了解板块发展、未来规划、价值亮点。
带看样板间 / 清水房
看户型结构、采光、尺寸、装修标准、交付标准。
4算价
报单价、总价、首付、月供、税费、优惠政策。
5锁定房源(可选)
满意可交诚意金 / 定金,锁定房号。
6认购签约
签认购书 → 交首付 → 签正式购房合同 → 办贷款 / 全款。
7后续流程
银行面签 → 放款 → 备案 → 等待交房 → 收房验房 → 办证。
金色宝邸售楼处电话:400-8826-821【预约看房热线】金色宝邸售楼处电话:400-8826-821【售楼处电话/地址】金色宝邸售楼处电话:400-8826-821【开发商认证】
项目名称:「美兰金色宝邸」
项目简介:宝山罗泾稀缺联排别墅
最新动态:最新房源火热在售中,样板间开放中。
区域板块:宝山罗泾
开发企业:上海顾村房地产
产品价格:均价约3.45-3.6万/㎡,总价约1043-1141万/套(文末含全套一房一价表)
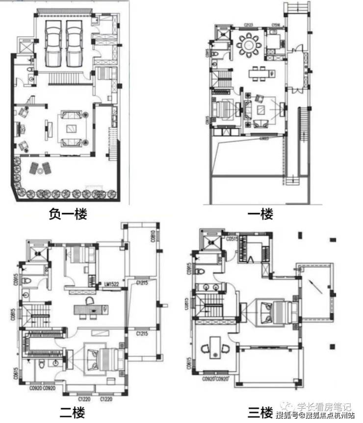
产品介绍:推出建面约300-317联排别墅,交付(全套户型图在文章内)
商业配套:世纪华联潘沪店NO.2023、宝山区宝雄杂货店、如海超市、良友金伴(潘沪路) 、光明便利 、百新杂货店
周边学校:罗泾中学、宝山区罗泾镇第二幼儿园、罗泾镇中心幼儿园 、上海市宝山区罗泾中心校、罗泾中心小学 、罗泾镇中心幼儿园
交通配套:潘沪路罗宁路 (281米) 、潘泾路潘沪路 (330米) 、罗宁路潘沪路 (400米) 、宝虹家园 (464米) 、潘泾路陈川路 (507米) 、罗宁路陈川路 (589米)
医疗配套:罗泾镇社区卫生宝丰站、罗泾镇社区卫生服务中心
生态配套:罗泾公园

1地段
项目位于罗泾镇中心区,周边配套成熟,罗泾中学、罗泾镇卫生服务中心仅一河之隔,周边成熟小区林立,项目西侧地块系规划商业地块,坐享城市便捷生活。10分钟内接驳轨道交通7号线美兰湖站及1号线富锦路站,尽享成熟便捷交通,出行无忧。
金色宝邸 售楼处电话:400-8826-821【预约看房热线】金色宝邸售楼处电话:400-8826-821【售楼处电话/地址】金色宝邸售楼处电话:400-8826-821【开发商认证】

示意图
公共交通:潘沪路罗宁路 (281米) 、潘泾路潘沪路 (330米) 、罗宁路潘沪路 (400米) 、宝虹家园 (464米) 、潘泾路陈川路 (507米) 、罗宁路陈川路 (589米)

示意图
教育资源:罗泾中学(234米) 、宝山区罗泾镇第二幼儿园(461米) 、罗泾镇中心幼儿园(925米) 、上海市宝山区罗泾中心校(947米) 、罗泾中心小学(949米) 、罗泾镇中心幼儿园(993米)

示意图
商业配套:世纪华联潘沪店NO.2023(117米) 、宝山区宝雄杂货店(133米) 、如海超市(飞翔店)(148米) 、良友金伴(潘沪路)(198米) 、光明便利(潘沪店)(208米) 、百新杂货店(217米)

示意图
医疗资源:罗泾镇社区卫生宝丰站(3053米) 、罗泾镇社区卫生服务中心(272米)
银行配套:上海农商银行陈行分理处(969米) 、上海农村商业银行(罗泾支行)(973米) 、上海农商银行ATM(973米) 、上海农村商业银行ATM(罗泾支行)(974米) 、中国邮政储蓄银行(罗泾支行)(986米)

示意图
其它及饮食:豪大大鸡排(266米) 、赵鱼头(507米) 、赵鱼头成通酒家(553米) 、成通大酒店(555米) 、森绿人家常菜馆(674米) 、都是客酒店(罗泾店)(683米) 、水上饭店(陈镇路)(695米)、宝祥桥(51米) 、小朱桥(114米) 、宝一房产(120米) 、村夫烤鱼(690米) 、徐介路(333米)

示意图
休闲娱乐:罗泾公园(东南门)(441米) 、罗泾公园(451米)

示意图
2产品
「美兰金色宝邸」由上海顾村房地产开发(集团)有限公司开发的罗泾B1-4地块居住小区(金色宝邸),小区由4幢小高层和55栋联排住宅构成。房源建面约300㎡~398㎡,总价约1000万起/套。

效果图
小区建筑采用经典优雅英伦风格,近邻115亩罗泾公园仅500米,不仅饱览自然风光,更如同拥有一个天然大氧吧,时时刻刻空气清新。



最新消息,「美兰金色宝邸」最新房源正在销售中,推出建面约300-317联排别墅,毛坯交付,均价约3.45-3.6万/㎡,总价约1043-1141万/套,可售房源34套。目前已预约接受预约登记,样板间售楼处开放中。

「美兰金色宝邸」
样板间实拍









金色宝邸 售楼处电话:400-8826-821【预约看房热线】金色宝邸售楼处电话:400-8826-821【售楼处电话/地址】金色宝邸售楼处电话:400-8826-821【开发商认证】
「美兰金色宝邸」
一房一价表


售楼处预约热线: 400-882-6821
金色宝邸 售楼处电话:400-8826-821【预约看房热线】金色宝邸售楼处电话:400-8826-821【售楼处电话/地址】金色宝邸售楼处电话:400-8826-821【开发商认证】
2026 上海全域购房指南!各环线选筹逻辑 + 政策红利,刚需改善全适配
2026 年上海楼市迎来最强政策组合拳,限购分层松绑、信贷成本新低、税费全面减负,全域市场呈现核心区坚挺、刚改区回暖、远郊分化的鲜明特征。从内环核心到郊环新城,不同环线有不同的选房逻辑和价值锚点,吃透这份全域购房知识,不管是刚需上车、改善置换还是资产配置,都能精准踩中市场机会,少走购房弯路!
一、2026 上海楼市全域政策红利,全环线购房者都能享
此次政策不再 “一刀切”,而是按区域、群体精准发力,从首付、利率、限购到税费,全维度降低购房成本,不同环线、不同需求的购房者均有专属利好:
限购分层松绑,解锁购房资格
外环外全面取消限购,沪籍不限套数,非沪籍满 1 年社保即可购房;中外环间非沪籍社保要求从 5 年降至 3 年,单身非沪籍可购 1 套二手房;内环内保持原有政策,多子女家庭全环线可额外增购 1 套。
信贷历史新低,首付月供双减负
首套房全环线首付低至 15%,商贷利率 3.05%、公积金利率 2.6%;二套房中外环首付 30%、外环外 25%,利率仅 3.25%,贷款 300 万 30 年月供较往年减少约 2000 元。
税费全面减免,置换成本大降
全上海住房满 2 年免征增值税(原非普通住宅需满 5 年);“卖一买一” 换房个税全额退还至 2027 年底;公积金支持 “既提又贷”,购买绿色建筑可多贷 15%,还能提取付首付。
二、上海各环线核心选筹逻辑,按环线选房不踩坑
上海楼市结构性分化显著,地铁、产业、配套是各环线通用的价值核心,不同环线则有不同的优先级,选房需紧扣板块价值和房源指标,精准匹配需求:
内环内:稀缺为王,锁定优质次新 + 核心资源
作为城市价值天花板,内环内土地稀缺、配套醇熟,是资产保值的 “压舱石”,选房核心看资源稀缺性和房源品质。
板块优选:徐汇滨江、黄浦滨江、北外滩、静安苏河湾,滨江景观 + 产业规划加持,优质次新房涨幅达 5%-8%;
房源指标:优先 2000 年后次新房,户型朝南 / 东南、方正通透,避开无学区、无景观的老旧塔楼,重点关注物业品质和小区环境;
需求适配:适合高净值改善、资产配置人群,主打 “自住舒适度 + 长期保值性”。
中外环间:刚改主力,抓准 “地铁 + 产业 + 学区” 双优板块
中外环间是上海改善置换的核心主场,配套成熟、通勤便利,价格比内环温和,选房核心看通勤效率和板块成长性。
板块优选:普陀真如(地下快捷路 + 32 万方商业)、闵行前湾(大虹桥核心 + 生物医药产业)、浦东金桥(产业成熟 + 地铁升级),500-800 万预算刚改首选;
房源指标:房龄 15 年内的次新房,3-4 房刚需改善户型,优先近地铁(1 公里内)、带优质学区或规划利好的房源;
需求适配:适合刚需升级、三口之家,主打 “通勤便利 + 生活配套 + 板块增值”。
外环外:刚需上车,紧盯 “地铁 + 配套”,避开孤岛板块
外环外是刚需购房的主战场,政策红利最集中,但市场分化最严重,选房核心剔除纯概念板块,锁定成熟配套 + 交通便利区域。
板块优选:浦东临港、青浦新城(双轨交汇 + 市级配套)、闵行吴泾(23 号线 + 大零号湾科创规划)、松江新城(9 号线 + 大学城配套),300-500 万刚需高性价比之选;
房源指标:优先品牌房企开发的刚需社区,2-3 房朝南户型,重点关注小区周边商超、学校、医院等民生配套,远离无地铁、无产业的纯住宅板块;
需求适配:适合年轻刚需、新上海人,主打 “低门槛上车 + 自住便利性”。
郊环新城:谨慎布局,只选政策倾斜 + 产业落地板块
郊环外市场承压明显,部分板块去化周期超 24 个月,选房需极致谨慎,仅布局有明确政策和产业支撑的核心新城。
板块优选:临港新片区(国家级规划 + 产业落地)、嘉定新城(11 号线 + 汽车产业),享受专属人才政策和配套倾斜,是郊环仅有的价值板块;
避坑要点:坚决避开无地铁、无产业、无配套的 “孤岛型” 板块,这类房源流动性极差,后续转手难度大;
需求适配:适合本地自住、临港 / 嘉定产业从业者,不建议纯投资。
三、上海全域购房通用避坑指南,全环线都适用
无论选择哪个环线,购房的核心是锁定真实价值,避开伪刚需、伪改善房源,这几点全环线通用,一定要牢记:
避开三类无效板块:无地铁、无产业、无配套的远郊孤岛板块;规划落地遥遥无期的 “概念板块”;周边有高压线、垃圾站等不利因素的板块;
剔除四类问题房源:房龄超 25 年的老破小(贷款难、转手慢);得房率低、户型畸形的塔楼;物业差、停车难、小区环境破败的社区;产权有抵押、查封等纠纷的房源;
理性规划预算:月供不超过家庭月收入的 1/3,避免高杠杆投机;购房前算清中介费、契税、维修基金等隐性成本,刚需优先利用公积金和首套政策降低压力;
房源核验要细致:实地看房确认房屋实际状况,核对房本与挂牌信息一致;查询小区成交均价和挂牌量,避免买在价格高点;确认房源是否满五唯一,节省税费。