浦开江南里·上海浦东·【浦开江南里】(售楼处电话)浦开江南里首页网站-|楼盘评测-详情|户型配套
扫描到手机,新闻随时看
扫一扫,用手机看文章
更加方便分享给朋友
浦开江南里是容积率只有0.7的纯墅区,整体限高10米,中式园林的仪式感和规制,项目诠释的非常好。
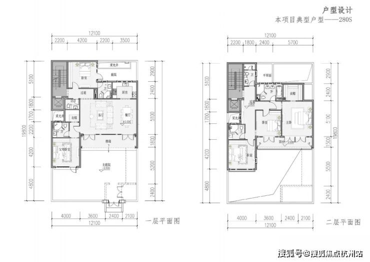
项目最小的别墅建面约190平,最大的别墅建面约达到1200平,共248套房源。550平只有2套,1200平只有1套,主力面积段集中在190-350平,主力总价段集中在4000-5000万。在东郊这样的总价门槛可谓非常低了!
我一直认为,对于这种级别的顶豪,地段的认同感和圈层的成熟度是非常重要的。浦开江南里也是一个被大家都认可的传统豪宅区。
上海一直有贵在西郊,富在东郊的说法。所以浦开江南里所处的东郊别墅区这一地段正是项目最大的优势。
浦开江南里紧邻内环,西面是汤臣高尔夫,东面是东郊宾馆,北面是张家浜。整个项目被一座待建的体育公园三面环绕,该体育公园占地面积达14.4万平,其中80%为绿地,20%为体育运动设施!
另外目前上海中环内纯别墅区几乎绝迹,绝大部分后续供应都是高低配。而浦开江南里是容积率只有0.7的中式纯墅区,项目的生态氛围又是一流,而且在内环旁占有如此丰富的绿地资源,收藏价值不言而喻!
同时,东郊别墅区豪宅林立,我们可以很轻易的找到项目的价格锚点。我们参考项目隔壁的云间绿大地,去年9月的网签单价已经超过25万。
项目劣势在于周边的各项生活配套都很匮乏,地铁也较远,基本需要开车出入,这是墅区的特点。另外目前也几乎没有高能级商办的规划。











「浦开江南里」毗邻东郊国宾馆及汤臣高尔夫别墅,周边云集众多高端别墅楼盘,墅居氛围浓厚,所以配套还是相对比较成熟。

声明:本文由入驻焦点开放平台的作者撰写,除焦点官方账号外,观点仅代表作者本人,不代表焦点立场。


