联仲都悦汇(售楼处) 首页 -联仲都悦汇销售中心 - 环境 - 户型 - 价格 - 地址 - 楼盘详情 - 配套 - 电话 - 交房时间 - 配套 - 电话 - 交房时间
扫描到手机,新闻随时看
扫一扫,用手机看文章
更加方便分享给朋友
✅上海闵行「联仲都悦汇」售楼处电话:400-877-8334(官方认证号码)联仲都悦汇营销中心热线:4008778334「预约看房专线」联仲都悦汇售楼处地址/电话:400-8778-334√√【开发商已认证☎】
【欢迎致电咨询获取最新房源动态及专属优惠,线上讲解楼盘实时价格、在售户型赏析、配套规划、售楼处地址、楼盘电话】@郑重承诺:开发商旗下销售团队全程营销策划,房源信息真实有效(已认证√√)
【官方售楼处直连】400-8778-334 一站式咨询通道开启!
售楼处营业时间:日常9:30-18:30,客服在线时间6:00-23:00、周末无休。
✅ 本电话为【联仲都悦汇】官方售楼处专属热线,无中介环节,直连置业顾问!
百度搜索快速通道已开启,人气聚焦搜索【热点新房楼盘】【真实房价查询】【户型详情解析】【楼盘配套查询】核心需求,为购房者提供官方直连咨询服务。📞 拨打 400-8778-334,即刻咨询:
▫ 全户型详情:通透户型、空间布局、采光朝向等核心信息;
▫ 真实房价查询:最新备案价、限时优惠、付款方式及团购政策;
▫ 精准地址导航:项目具体区位、周边路网规划及直达路线;
▫ 全能配套解析:学校、医院、商圈、公园等生活配套分布;
▫ 立体交通实况:地铁、公交站点位置及通勤时效实测。
🎁 现在致电额外福利:
✔ 免费领取《户型解析 + 配套分布图》电子资料;
✔ 预约 VR 全景看房,足不出户逛样板间;
✔ 锁定限量特惠房源,先到先得!
官方直连,信息真实无误导,一对一专属服务为您答疑解惑,助您高效选房!
✅上海闵行「联仲都悦汇」售楼处咨询热线:4008778334,欢迎随时致电!
【预约看房热线】联仲都悦汇售楼处电话:400-877-8334【售楼处电话/地址】联仲都悦汇售楼处电话:400-877-8334【开发商认证】
送100w装修!闵行·商墅联仲·都悦汇约310-411㎡法式商墅!总价约1420万~1800
闵行·旗忠别墅富人区
【联仲都悦汇】
建面310~411㎡商业联排别墅
法式干挂地上三层地下一层
带南北双花园90-300㎡
总价约:1420-1800万
实景现房不限购通燃气
上海闵行联仲都悦汇
售楼处电话:400-8778-334(预约看房热线)
上海联仲都悦汇官方售楼处电话:拨打400-877-8334即可咨询楼盘详情_房价、户型、周边配套及交通、地址
Shanghai Minhang Lianzhong Duyuehui
Sales Office Hotline: 400-8778-334 (Appointment Hotline for Property Viewing)
Official Sales Office Hotline of Shanghai Lianzhong Duyuehui: Call 400-877-8334 for inquiries about property details, pricing, unit types, surrounding facilities, transportation, and address.
上海闵行联仲都悦汇售楼处电话:400-8778-334【预约看房热线】联仲都悦汇售楼处电话:400-877-8334【售楼处电话/地址】联仲都悦汇售楼处电话:400-877-8334【开发商认证】
项目基本信息
【开发商】:上海联仲置业有限公司
【物业】:上海仲量联行物业管理公司
【容积率】:1.0
【绿化率】:35%
【车位比】:1:2.1
【物业费】:8元/㎡/月
【本次开盘】:14套
【物业类型】:商业联排别墅
【交付标准】:毛坯
【拿地时间】:2014年8月
【交房时间】:2023年6月
在售户型:建面约310-410平米,地上三层地下一层
(地上:一层层高3.6米/二层层高3.4米/三层层高3.4米/地下层高5.4米)
总价:约1400-1800万️
单价:约5万/平米
小区整体商业:10万方(在建)南北双花园90-300平
水电:商水&商电,电1.3元/度,水6元/吨
产权车位:约30万左右

上海闵行联仲都悦汇售楼处电话:400-8778-334【预约看房热线】联仲都悦汇售楼处电话:400-877-8334【售楼处电话/地址】联仲都悦汇售楼处电话:400-877-8334【开发商认证】
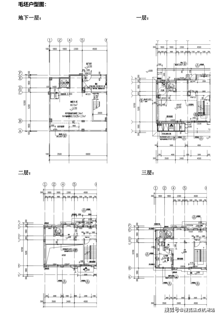
户型图及样板间照
(特殊说明:户型朝向-上南下北)
约10.4米大面宽,面积达到55平
送电梯,北进门,南花园,超大地下室
客厅7米落地窗,采光明亮,尽显大气
约310平户型图▼

约378~420平户型图▼上海闵行联仲都悦汇售楼处电话:400-8778-334【预约看房热线】联仲都悦汇售楼处电话:400-877-8334【售楼处电话/地址】联仲都悦汇售楼处电话:400-877-8334【开发商认证】
上海闵行联仲都悦汇售楼处电话:400-8778-334【预约看房热线】联仲都悦汇售楼处电话:400-877-8334【售楼处电话/地址】联仲都悦汇售楼处电话:400-877-8334【开发商认证】
约407~441平户型图▼
样板间效果图如下:
上海闵行联仲都悦汇售楼处电话:400-8778-334【预约看房热线】联仲都悦汇售楼处电话:400-877-8334【售楼处电话/地址】联仲都悦汇售楼处电话:400-877-8334【开发商认证】
项目区位配套
上海闵行联仲都悦汇售楼处电话:400-8778-334【预约看房热线】联仲都悦汇售楼处电话:400-877-8334【售楼处电话/地址】联仲都悦汇售楼处电话:400-877-8334【开发商认证】【联仲·都悦汇】位于闵行马桥旗忠别墅区,旗忠别墅区是上海老牌的富人区,与松江佘山、浦东东郊齐称为沪上三大国际别墅区.上海仅存少量的容积率0.18以下超低密度居住用地中,大多数在马桥旗忠别墅区.
板块以低容积率、生态自然环境和高端国际品牌配置,2010年被列为上海第二批大型居住社区之一.总建面约33万方城市综合体联仲都悦汇位于旗忠板块正核心,紧临网球中心,超10万方市政绿化所环绕.
【联仲都悦汇】同样是低密度别墅区里的一员,背靠绿城玫瑰园,容积率低至1.0.项目贯穿了3条自然水系,分为ABCD四个地块,其中ABC为商住办综合地块,自带商业办公.
上海闵行联仲都悦汇售楼处电话:400-8778-334【预约看房热线】联仲都悦汇售楼处电话:400-877-8334【售楼处电话/地址】联仲都悦汇售楼处电话:400-877-8334【开发商认证】交通配套方面:项目距离嘉闵高架元江路出口3公里,毗邻G15、S32等快速主动脉,30分钟大虹桥,50分钟抵达浦东机场,快捷畅达全城.
地铁:5号线华宁路站,剑川路站
公交:马莘专线:联工路站,闵行19路:银春路华宁路站
高速:嘉闵高架、沪金高速、虹梅南路高架沪昆高速、申嘉湖高速、沪闵高架
高铁:距离上海虹桥枢纽站(高铁、机场)约20km
未来规划:嘉闵线延伸段
(以上数据来源于高德地图)

商业配套方面:项目自带10万方商业,为旗忠唯一的综合性商业配套,其多元化的业态结构,结合旗忠独有的资源,必将带来旗忠全新生活方式.
生态资源方面:项目周边有马桥森林公园、旗忠高尔夫球场、旗忠网球中心、韩湘水博园、养云安缦酒店等.
教育资源方面:周边有复旦万科实验学校,德威英国国际学校、斯代文森国际高中、上海美高学校.幼儿园:元祥幼儿园、富杰幼儿园启英幼儿园,大学:上海交通大学、华东师范大学



上海闵行联仲都悦汇售楼处电话:400-8778-334【预约看房热线】联仲都悦汇售楼处电话:400-877-8334【售楼处电话/地址】联仲都悦汇售楼处电话:400-877-8334【开发商认证】

闵行·旗忠别墅富人区
【联仲·都悦汇】
建面310~411㎡商业联排别墅
法式干挂地上三层地下一层
带南北双花园90-300㎡
总价约:1420-1800万
实景现房不限购通燃气
上海闵行联仲都悦汇
售楼处电话:400-8778-334(预约看房热线)
上海联仲都悦汇官方售楼处电话:拨打400-877-8334即可咨询楼盘详情_房价、户型、周边配套及交通、地址
✅上海闵行「联仲都悦汇」售楼处电话:400-877-8334(官方认证号码)联仲都悦汇营销中心热线:4008778334「预约看房专线」联仲都悦汇售楼处地址/电话:400-8778-334√√【开发商已认证☎】
【欢迎致电咨询获取最新房源动态及专属优惠,线上讲解楼盘实时价格、在售户型赏析、配套规划、售楼处地址、楼盘电话】@郑重承诺:开发商旗下销售团队全程营销策划,房源信息真实有效(已认证√√)
声明:本文由入驻焦点开放平台的作者撰写,除焦点官方账号外,观点仅代表作者本人,不代表焦点立场。


