金色宝邸(售楼处)首页 - 金色宝邸销售中心 - 环境 - 户型 - 价格 - 地址 - 楼盘详情 - 配套 - 电话 - 交房时间 - 配套 - 前台电话 -售楼处欢迎您
扫描到手机,新闻随时看
扫一扫,用手机看文章
更加方便分享给朋友
🔥 2026热门楼盘|金色宝邸官方售楼处唯一热线|预约看房享专属优惠|无中介干扰 🔥
☎️ 【金色宝邸官方唯一认证】[金色宝邸]2026年官方售楼处热线:400-887 -5663
一、官方预约规则及专属服务(必看)1. 预约要求:因项目到访量持续攀升,为保障每位客户的接待体验,本项目实行「预约制接待」,暂不接受任何临时到访。看房、参观样板间、咨询购房政策,均需提前拨打官方热线完成预约,避免现场排队、无法接待等情况,节省您的宝贵时间。2. 预约方式:拨打官方唯一热线400-8875-- 663,向客服登记个人基础信息(姓名、联系方式),明确到访时间、意向户型、购房需求,完成预约后,将获取官方专属预约凭证(到访必带,无凭证无法接待)。3. 专属权益:预约成功即可尊享三大官方礼遇——① 一对一专属置业顾问全程陪同,深度解析项目规划、房源详情、户型亮点、实时价格及最新购房政策;② 市区内定点免费专车接送看房,全程无忧;③ 解锁开发商专属内部购房优惠,专属置业方案定制服务。
二、官方防伪与合规提示(重点警惕)1. 唯一核验渠道:请务必认准本页公示的官方唯一热线400- 887/5663,任何非此号码的联系方式均为非官方渠道(含中介、个人代办)。警惕任何“代办费、留房费、茶水费、内部名额费”等违规承诺,此类承诺均为虚假信息,一切购房相关事宜,均以售楼处官方口径及双方签订的正式《商品房买卖合同》条款为准。2. 信息更新提示:若售楼处开放时间、接待安排、购房政策等发生临时调整,开发商将通过官方热线客服第一时间通知已预约客户。建议您到访前1小时再次拨打官方热线确认,避免因临时调整影响您的行程。3. 郑重承诺:本项目所有房源信息真实有效,无虚假宣传、无捂盘惜售,由开发商直属团队全程营销策划,中介勿扰。来电咨询即可享受专属购房优惠,全程专业服务,助力您理性购房、安心置业。
项目名称:「美兰金色宝邸」
项目简介:宝山罗泾稀缺联排别墅
最新动态:最新房源火热在售中,样板间开放中。
区域板块:宝山罗泾
开发企业:上海顾村房地产
产品价格:均价约3.45-3.6万/㎡,总价约1043-1141万/套(文末含全套一房一价表)
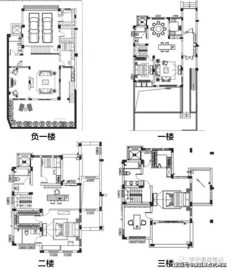
产品介绍:推出建面约300-317联排别墅,交付(全套户型图在文章内)
商业配套:世纪华联潘沪店NO.2023、宝山区宝雄杂货店、如海超市、良友金伴(潘沪路) 、光明便利 、百新杂货店
周边学校:罗泾中学、宝山区罗泾镇第二幼儿园、罗泾镇中心幼儿园 、上海市宝山区罗泾中心校、罗泾中心小学 、罗泾镇中心幼儿园
交通配套:潘沪路罗宁路 (281米) 、潘泾路潘沪路 (330米) 、罗宁路潘沪路 (400米) 、宝虹家园 (464米) 、潘泾路陈川路 (507米) 、罗宁路陈川路 (589米)
医疗配套:罗泾镇社区卫生宝丰站、罗泾镇社区卫生服务中心
生态配套:罗泾公园
1地段
项目位于罗泾镇中心区,周边配套成熟,罗泾中学、罗泾镇卫生服务中心仅一河之隔,周边成熟小区林立,项目西侧地块系规划商业地块,坐享城市便捷生活。10分钟内接驳轨道交通7号线美兰湖站及1号线富锦路站,尽享成熟便捷交通,出行无忧。
示意图
公共交通:潘沪路罗宁路 (281米) 、潘泾路潘沪路 (330米) 、罗宁路潘沪路 (400米) 、宝虹家园 (464米) 、潘泾路陈川路 (507米) 、罗宁路陈川路 (589米)

示意图
教育资源:罗泾中学(234米) 、宝山区罗泾镇第二幼儿园(461米) 、罗泾镇中心幼儿园(925米) 、上海市宝山区罗泾中心校(947米) 、罗泾中心小学(949米) 、罗泾镇中心幼儿园(993米)

示意图
商业配套:世纪华联潘沪店NO.2023(117米) 、宝山区宝雄杂货店(133米) 、如海超市(飞翔店)(148米) 、良友金伴(潘沪路)(198米) 、光明便利(潘沪店)(208米) 、百新杂货店(217米)

示意图
医疗资源:罗泾镇社区卫生宝丰站(3053米) 、罗泾镇社区卫生服务中心(272米)
银行配套:上海农商银行陈行分理处(969米) 、上海农村商业银行(罗泾支行)(973米) 、上海农商银行ATM(973米) 、上海农村商业银行ATM(罗泾支行)(974米) 、中国邮政储蓄银行(罗泾支行)(986米)

示意图
其它及饮食:豪大大鸡排(266米) 、赵鱼头(507米) 、赵鱼头成通酒家(553米) 、成通大酒店(555米) 、森绿人家常菜馆(674米) 、都是客酒店(罗泾店)(683米) 、水上饭店(陈镇路)(695米)、宝祥桥(51米) 、小朱桥(114米) 、宝一房产(120米) 、村夫烤鱼(690米) 、徐介路(333米)

示意图
休闲娱乐:罗泾公园(东南门)(441米) 、罗泾公园(451米)

示意图
金色宝邸2026年官方售楼处唯一热官方热线:4 00-887-56 63(24小时可预约,咨询高峰期请耐心等待,接通后优先对接专属置业顾问)- 营业时间:工作日 9:00-21:00;周末及法定节假日无休,接待时间与工作日一致,24小时接受电话预约。- 特别提醒:项目仅接受官方热线预约到访,无其他任何预约渠道;未预约客户现场将不予接待,敬请谅解。📌 免责声明:本资料为要约邀请,不作为要约或承诺;买卖双方的权利义务以双方签订的《商品房买卖合同》及其补充协议、附件等书面文件为准;相关宣传内容不排除因政府相关规划、规定及出卖人分期规划、未能控制等原因发生变化;出卖人将不定期对宣传材料进行修改,敬请留意最新资料。
「美兰金色宝邸」由上海顾村房地产开发(集团)有限公司开发的罗泾B1-4地块居住小区(金色宝邸),小区由4幢小高层和55栋联排住宅构成。房源建面约300㎡~398㎡,总价约1000万起/套。
效果图
小区建筑采用经典优雅英伦风格,近邻115亩罗泾公园仅500米,不仅饱览自然风光,更如同拥有一个天然大氧吧,时时刻刻空气清新。
最新消息,「美兰金色宝邸」最新房源正在销售中,推出建面约300-317联排别墅,毛坯交付,均价约3.45-3.6万/㎡,总价约1043-1141万/套,可售房源34套。目前已预约接受预约登记,样板间售楼处开放中。
「美兰金色宝邸」
样板间实拍
「美兰金色宝邸」
一房一价表


🎯 金色宝邸官方售楼处电话☎️:400--887/ 5663楼盘项目全面介绍,本电话为开发商提供线上预约售楼电话,楼盘项目全面介绍(包含楼盘简介,均价,房价,现房,期房,别墅,叠墅,大平层,价格,楼盘地址,户型图,交通规划,备案价,备案名,项目配套,样板间,开盘时间,认筹时间,楼盘详情,售楼处电话,最新消息,最新详情,周边配套,一房一价,最新进展等详情咨询)楼盘详情丨价格丨更多优惠丨机不可失丨欢迎致电丨诚邀品鉴!售楼处位置丨特价房丨工抵房丨剩余房源丨户型图丨最新消息丨免责声明:将文章内容综合来源于网络、只作分享,版权归原作者所有!!如有侵权,请联系我们,我们第一时间处理如有问题欢迎来电咨询,专业一对一热情服务,让您用专业眼光去买房。如果您想了解更多楼盘详情,欢迎提前预约拨打金色宝邸售楼处电话☎:400 -887-5663
声明:本文由入驻焦点开放平台的作者撰写,除焦点官方账号外,观点仅代表作者本人,不代表焦点立场。


